| ID # | 954074 |
| Λεπτομέρειες ακινήτου | 3 Υπνοδωμάτιο, 1 Μπάνιο, Εξωτερικός χώρος: 0.03 στρέμματα, Χαρακτηριστικά: 1020 ft2, 95m2 |
| AΈτος κατασκευής | 1890 |
| Φόροι (ετησίως) | $9,935 |
| Τύπος καυσίμου | Αέριο |
| Τύπος θέρμανσης | Ζεστός αέρας |
![]() |
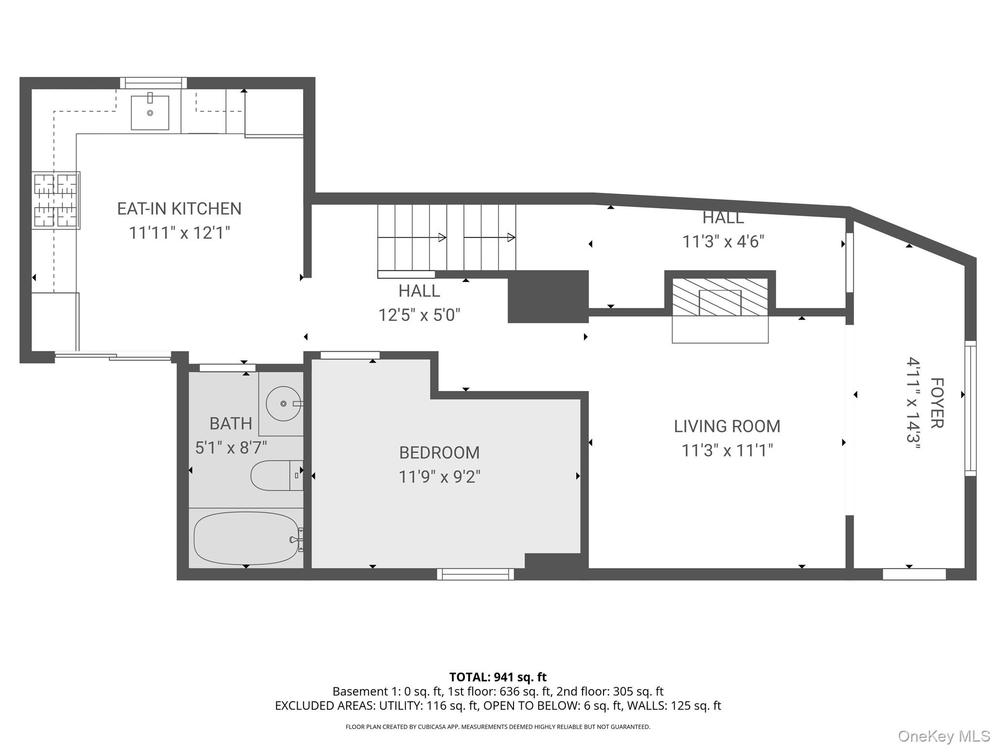
Πρωταρχική επενδυτική ευκαιρία στην καρδιά της Haverstraw, στην κομητεία Rockland! Αυτή η καλά διαρρυθμισμένη κατοικία σας καλωσορίζει σε έναν χώρο υποδοχής που ανοίγει σε ένα ευρύχωρο σαλόνι, δημιουργώντας μια φιλόξενη πρώτη εντύπωση. Κατά μήκος του διαδρόμου, μια γενναιόδωρα μεγέθους κουζίνα με τραπεζαρία διαθέτει έναν συρόμενο φεγγίτη προς την αυλή—ιδανική για προστιθέμενη αξία και μελλοντική ψυχαγωγία. Ο κύριος όροφος προσφέρει επίσης ένα πλήρες μπάνιο και μια μεγάλη κρεβατοκάμαρα, παρέχοντας ευέλικτες επιλογές διαβίωσης ή ενοικίασης. Στον πάνω όροφο, θα βρείτε μια υπ beautifully μεγέθους κύρια κρεβατοκάμαρα καθώς και μια επιπλέον φωτεινή και ευρύχωρη κρεβατοκάμαρα, και οι δύο γεμάτες φυσικό φως. Ένα ακατέργαστο υπόγειο με εσωτερική πρόσβαση προσφέρει εξαιρετική δυνατότητα ανάπτυξης για αποθήκευση ή επέκταση. Οι χαμηλοί φόροι ενισχύουν το δυναμικό ροής μετρητών. Βρίσκεται σε βολική τοποθεσία κοντά σε δημόσιες συγκοινωνίες, σχολεία και καταστήματα—αυτή είναι μια ισχυρή ευκαιρία προστιθέμενης αξίας για τους επενδυτές.
Prime investment opportunity in the heart of Haverstraw, Rockland County! This well-laid-out home welcomes you into a foyer opening to a spacious living room, creating an inviting first impression. Down the hallway, a generously sized eat-in kitchen features a sliding door to the patio—ideal for added value and future entertaining. The main level also offers a full bathroom and a large bedroom, providing flexible living or rental options. Upstairs, you’ll find a beautifully sized primary bedroom plus an additional bright and spacious bedroom, both filled with natural light. An unfinished basement with interior access presents excellent upside potential for storage or expansion. Low taxes enhance cash-flow potential. Conveniently located near public transportation, schools, and shopping—this is a strong value-add opportunity investors
This information is not verified for authenticity or accuracy and is not guaranteed and may not reflect all real estate activity in the market. Listing courtesy of Keller Williams Valley Realty © 2026







